© Olav Lange
Immobilien Olav Lange Startseite Mietobjekte Ummern Infrastruktur Freizeitaktivitäten Kontakt Abstellraum Frontansicht Flur Wohnzimmer Wohnzimmer mit Blick ins Kinderzimmer Badezimmer Terrasse Küche Garten Küche Schlafzimmer Wohnzimmer Front mit Haustür
Frontansicht
Seitenansicht
Garten
Terrasse
Flur
Wohnz. m. Blick Kinderz.
Küche
Badezimmer
Abstellraum
Küche
Wohnzimmer
 Schlafzimmer
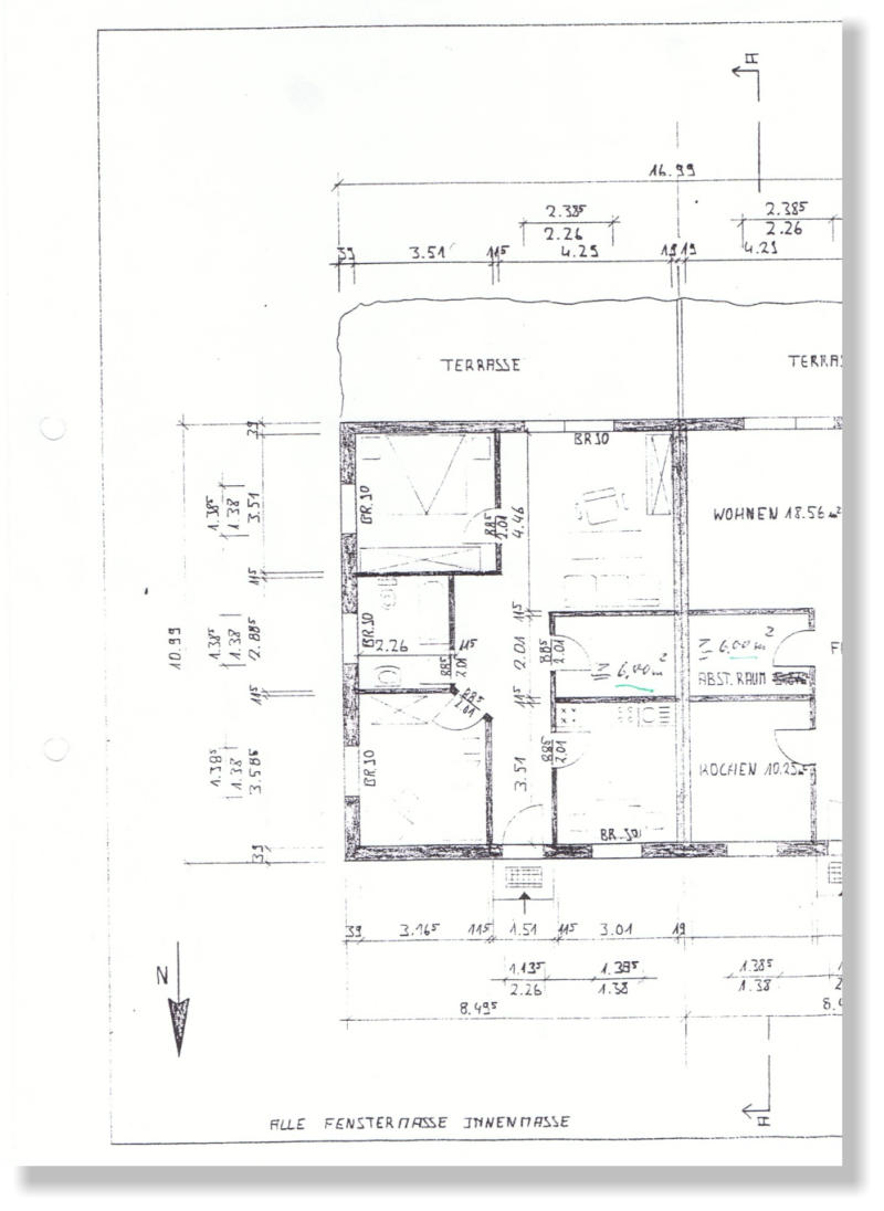
Doppelhaushälften
Meisenring 2 A und 2 B
je 75 m² Wohnfläche
Grundriss
Zimmer:
Wohnzimmer
Schlafzimmer
Kinderzimmer
Küche
Abstellraum
Badezimmer
Flur
dazu Terrasse und Garten
Kosten:
Kaltmiete € 400,00  
Nebenkosten € 40,00
zwei Kaltmieten als Kaution
Sonstige Informationen:
sehr schöne Lage am Waldrand im Süden von Ummern
Räumlichkeiten und Ausstattung der Doppelhaushälften
sind nahezu identisch
Gas-Therme für Heizung und Warmwasser
ausreichend Stellplätze vor dem Haus